Opis produktu
Właściwości i zastosowanie:
- Uchwyt samocentrujący 4-szczękowy przeznaczony do mocowania na tokarkach, stołach obrotowych, frezarkach
- Mocowanie DIN 6350
- Hartowane i szlifowane powierzchnie robocze zapewniają dłuższy okres eksploatacji z zachowaniem dokładności i powtarzalności
- Wyważona tarcza spiralna oraz cały uchwyt pozwalają na stosowanie wyższych prędkości obrotowych podczas obróbki bez wystąpienia dużych drgań
- Uniwersalny sposób mocowania: mogą być montowane na wrzecionie obrabiarki przy pomocy tarczy zabierakowej zarówno od tyłu jak i od przodu uchwytu
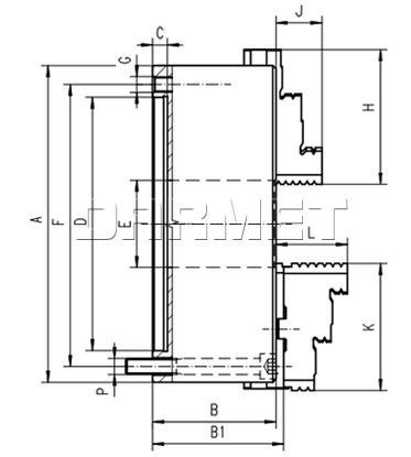
Dane techniczne:
| Parametr | Wartość | Jedn. | ![]() |
|---|---|---|---|
| A | 315 | mm | |
| B | 97,2 | mm | |
| B1 | 101,3 | mm | |
| C | 5 | mm | |
| DH7 | 260 | mm | |
| E | 103 | mm | |
| F | 286 | mm | |
| Q | 6 | ||
| G | M16 | mm | |
| L | 57 | mm | |
| P | 3xM16 | mm | |
| Waga | 50 | kg |
Wyposażenie:
- uchwyt tokarski
- szczęki górne twarde
- szczęki podstawowe
- klucz
Instrukcje obsługi
