Opis produktu
Właściwości i zastosowanie:
- Uchwyt samocentrujący 3-szczękowy przeznaczony do mocowania na tokarkach, stołach obrotowych, frezarkach
- Mocowanie DIN 55026
- Hartowane i szlifowane powierzchnie robocze zapewniają dłuższy okres eksploatacji z zachowaniem dokładności i powtarzalności
- Wyważona tarcza spiralna oraz cały uchwyt pozwalają na stosowanie wyższych prędkości obrotowych podczas obróbki bez wystąpienia dużych drgań
- Mocowane bezpośrednio na obrabiarkę do końcówki wrzeciona typu "A"
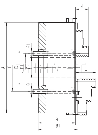
Dane techniczne:
| Parametr | Wartość | Jedn. |
|
|---|---|---|---|
| A | 160 | mm | |
| St. 1:4 | 5 | ||
| B | 68 | mm | |
| B1 | 72,8 | mm | |
| D | 82,573 | mm | |
| E | 42 | mm | |
| F | - | mm | |
| F1 | 61,9 | mm | |
| G | - | ||
| G1 | 3 x M10 | ||
| J | 32 | mm | |
| L | 43 | mm | |
| Waga | 10 | kg |
Wyposażenie:
- uchwyt tokarski
- szczęki jednolite twarde zewnętrzne
- szczęki jednolite twarde wewnętrzne
- klucz
Instrukcje obsługi
